5階は現在募集がありません
1フロア募集区画あり

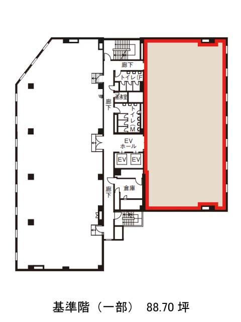
興和白金台ビル 5階

前の写真 次の写真

物件概要

物件番号

140-00030-110

物件名

興和白金台ビル

所在地

面積

88.70坪

賃料(共益費含)


入居日

募集終了

保証金

礼金

更新料

償却費

竣工

1978年3月

構造

規模

地上9階/地下1階

トイレ

男女別

空調

個別空調

エレベーター

セキュリティ

駐車場

耐震

新耐震基準

基準階天井高

2450mm

空室延床面積

88.70坪

最寄駅

情報更新日

2025/11/07

興和白金台ビルのテナント募集中区画

階数 面積 賃料(共益費含む) 保証金 入居可能日 検討リスト 詳細
4 88.70坪 応相談(応相談) 応相談 相談
…新着物件

アクセス

興和白金台ビルの物件情報

興和白金台ビル(港区白金台)は目黒駅(東口)から徒歩6分の賃貸オフィスです。
レンガ造りでレトロな外観のため、視認性が大変高い建物となっております。エントランスホールやエレベーターホールは清潔感があり、落ち着いた空間となっております。またビルの1階にはコンビニが入っているため、休憩時などに活用できそうです。ビル内にはOAフロアが備えられており、トイレは男女別、セキュリティは機械警備を導入しているため、安心です。さらに駐車場を完備してあるため、車の利用もしやすい環境となっております。
興和白金台ビルは目黒駅(東口)の他に白金台駅(1番出口)徒歩8分、五反田駅(A4番出口)徒歩14分で利用も可能です。

近隣のエリア・駅から探す