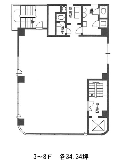
サン・キツカワビルのテナント募集中区画
| 階数 | 面積 | 賃料(共益費含む) | 保証金 | 入居可能日 | 検討リスト | 詳細 |
|---|---|---|---|---|---|---|
| 5 | 34.34坪 | 830,996円/月(24,200円/坪) | 494万円 | 即 |
…新着物件
アクセス
サン・キツカワビルの物件情報
サン・キツカワビル(港区浜松町)は大門駅(A2番出口)から徒歩1分の賃貸オフィスです。サン・キツカワビルは大門駅(A2番出口)の他に浜松町駅(北口)徒歩4分、モノレール浜松町駅(中央口)徒歩5分で利用も可能です。

