8階は現在募集がありません
1フロア募集区画あり

サン・キツカワビル 8階

前の写真 次の写真

物件概要

物件番号

141-00119-60

物件名

サン・キツカワビル

所在地

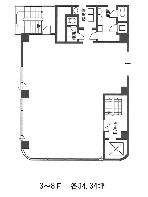
面積

34.34坪

賃料(共益費含)


入居日

募集終了

保証金

礼金

更新料

償却費

竣工

1986年11月

構造

SRC

規模

地上9階

トイレ

男女別

空調

エレベーター

セキュリティ

駐車場

耐震

新耐震基準

基準階天井高

空室延床面積

34.34坪

最寄駅

情報更新日

2025/08/25

サン・キツカワビルのテナント募集中区画

階数 面積 賃料(共益費含む) 保証金 入居可能日 検討リスト 詳細
5 34.34坪 830,996円/月(24,200円/坪) 494万円
…新着物件

アクセス

サン・キツカワビルの物件情報

サン・キツカワビル(港区浜松町)は大門駅(A2番出口)から徒歩1分の賃貸オフィスです。
サン・キツカワビルは大門駅(A2番出口)の他に浜松町駅(北口)徒歩4分、モノレール浜松町駅(中央口)徒歩5分で利用も可能です。

近隣のエリア・駅から探す