浜松町松永ビル 4階


物件概要
物件番号
141-00226-30物件名
浜松町松永ビル所在地
- 東京都港区浜松町2-1-17
- アクセスマップ
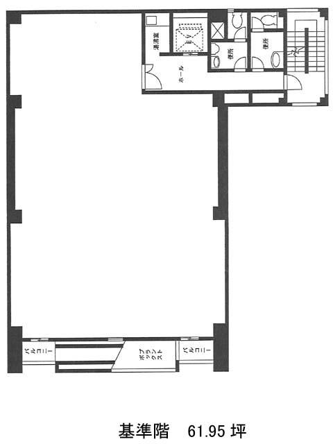
面積
61.95坪賃料(共益費含)
月額1,158,465円(18,700円/坪)
入居日
即保証金
6,195,000円礼金
なし更新料
新1ケ月償却費
なし竣工
1991年11月構造
S造規模
地上9階トイレ
男女別空調
個別空調エレベーター
有セキュリティ
有駐車場
無耐震
新耐震基準基準階天井高
2500mm空室延床面積
104.12坪情報更新日
2025/10/02浜松町松永ビルのテナント募集中区画
階数 | 面積 | 賃料(共益費含む) | 保証金 | 入居可能日 | 検討リスト | 詳細 |
---|---|---|---|---|---|---|
1 | 42.17坪 | 1,485,034円/月(35,215円/坪) | 1,350万円 | 即 | ||
4 | 61.95坪 | 1,158,465円/月(18,700円/坪) | 619万円 | 即 |
…新着物件
アクセス
浜松町松永ビルの物件情報
浜松町松永ビル(港区浜松町)は大門駅(A1番出口)から徒歩1分の賃貸オフィスです。
壁面緑化と三角屋根がかなり特徴的な外観のオフィスビルです。大門駅すぐの立地ということもあり、視認性は申し分ないでしょう。
1階部分にはファミリーマートの店舗テナントが入居中ですので、何かと便利かと思います。エントランス~エレベーターホールも外観同様、デザイン性の高い造りです。
基準階は60坪強の規模。すっきりとした間取りの無柱空間+OAフロアにより、使い勝手の良い執務室です。男女別タイプのトイレと給湯設備は全て室外に設置されています。セキュリティは機械警備を採用。充実のオフィス環境が整っています。
浜松町松永ビルは大門駅(A1番出口)の他に浜松町駅(北口)徒歩4分、モノレール浜松町駅(中央口)徒歩5分で利用も可能です。