浜松町松永ビルのテナント募集中区画
| 階数 | 面積 | 賃料(共益費含む) | 保証金 | 入居可能日 | 検討リスト | 詳細 |
|---|---|---|---|---|---|---|
| 1 | 42.17坪 | 1,485,034円/月(35,215円/坪) | 1,350万円 | 即 | ||
| 4 | 61.95坪 | 1,158,465円/月(18,700円/坪) | 619万円 | 即 |
…新着物件
アクセス
浜松町松永ビルの物件情報
浜松町松永ビル(港区浜松町)は大門駅(A1番出口)から徒歩1分の賃貸オフィスです。壁面緑化と三角屋根がかなり特徴的な外観のオフィスビルです。大門駅すぐの立地ということもあり、視認性は申し分ないでしょう。
1階部分にはファミリーマートの店舗テナントが入居中ですので、何かと便利かと思います。エントランス~エレベーターホールも外観同様、デザイン性の高い造りです。
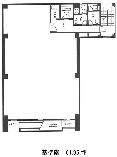
基準階は60坪強の規模。すっきりとした間取りの無柱空間+OAフロアにより、使い勝手の良い執務室です。男女別タイプのトイレと給湯設備は全て室外に設置されています。セキュリティは機械警備を採用。充実のオフィス環境が整っています。浜松町松永ビルは大門駅(A1番出口)の他に浜松町駅(北口)徒歩4分、モノレール浜松町駅(中央口)徒歩5分で利用も可能です。

