2階は現在募集がありません
2フロア募集区画あり

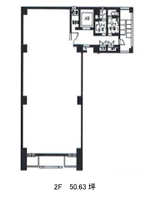
浜松町松永ビル 2階

前の写真 次の写真

物件概要

物件番号

141-00226-72

物件名

浜松町松永ビル

所在地

面積

50.63坪

賃料(共益費含)


入居日

募集終了

保証金

礼金

更新料

償却費

竣工

1991年11月

構造

S造

規模

地上9階

トイレ

男女別

空調

個別空調

エレベーター

セキュリティ

駐車場

耐震

新耐震基準

基準階天井高

2500mm

空室延床面積

104.12坪

最寄駅

情報更新日

2026/04/16

浜松町松永ビルのテナント募集中区画

階数 面積 賃料(共益費含む) 保証金 入居可能日 検討リスト 詳細
1 42.17坪 1,485,034円/月(35,215円/坪) 1,350万円
4 61.95坪 1,158,465円/月(18,700円/坪) 619万円
…新着物件

浜松町松永ビルのアクセス

浜松町松永ビルの物件情報

浜松町松永ビル(港区浜松町)は大門駅(A1番出口)から徒歩1分の賃貸オフィスです。
壁面緑化と三角屋根がかなり特徴的な外観のオフィスビルです。大門駅すぐの立地ということもあり、視認性は申し分ないでしょう。
1階部分にはファミリーマートの店舗テナントが入居中ですので、何かと便利かと思います。エントランス~エレベーターホールも外観同様、デザイン性の高い造りです。
基準階は60坪強の規模。すっきりとした間取りの無柱空間+OAフロアにより、使い勝手の良い執務室です。男女別タイプのトイレと給湯設備は全て室外に設置されています。セキュリティは機械警備を採用。充実のオフィス環境が整っています。
浜松町松永ビルは大門駅(A1番出口)の他に浜松町駅(北口)徒歩4分、モノレール浜松町駅(中央口)徒歩5分で利用も可能です。

近隣のエリア・駅から探す