NCO浜松町 2階
物件概要
物件番号
141-00321-2物件名
NCO浜松町所在地
- 東京都港区浜松町1-16-1
- アクセスマップ
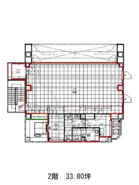
面積
33.80坪賃料(共益費含)
月額1,078,218円(31,900円/坪)
入居日
即保証金
7,841,600円礼金
なし更新料
なし償却費
なし竣工
2025年8月構造
規模
地上11階トイレ
男女別空調
個別空調エレベーター
有セキュリティ
駐車場
無耐震
新耐震基準基準階天井高
空室延床面積
410.50坪情報更新日
2025/11/17NCO浜松町のテナント募集中区画
…新着物件
アクセス
NCO浜松町の物件情報
NCO浜松町(港区浜松町)は大門駅(B1番出口)から徒歩3分の賃貸オフィスです。空港方面へのアクセスにも優れたエリアに立地し、移動の多い企業や外出機会の多いワーカーにとって利便性の高い環境です。外観はホテルライクで落ち着いたデザイン。
基準階は約42坪、OAフロアを採用しており、快適なIT環境を整えることができます。
ワンフロアワンテナントの設計で、エレベーターホールから室内までがしっかり区画されており、来客時の導線もスムーズ。水回り(男女別トイレ・給湯スペース)は室内にまとめられているため、専有性が高く、社内の運用もしやすい構造です。コンパクトながらもメリハリのある動線設計がなされており、人数に応じた効率的なレイアウトが可能。
周辺には飲食店やコンビニエンスストアが充実しており、ランチや社外打合せ、ちょっとした買い物にも便利です。NCO浜松町は大門駅(B1番出口)の他に浜松町駅(北口)徒歩4分、モノレール浜松町駅(中央口)徒歩6分で利用も可能です。

