2階は現在募集がありません
1フロア募集区画あり
Landwork青山ビル(ヒューリック外苑前ビル) 2階
物件概要
物件番号
142-00104-40物件名
Landwork青山ビル(ヒューリック外苑前ビル)所在地
- 東京都港区北青山2-7-26
- アクセスマップ
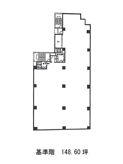
面積
148.60坪賃料(共益費含)
−入居日
募集終了保証金
−礼金
−更新料
−償却費
−竣工
1987年4月構造
SRC規模
地上10階/地下1階トイレ
男女別空調
個別空調エレベーター
有セキュリティ
有駐車場
無耐震
新耐震基準基準階天井高
空室延床面積
51.60坪情報更新日
2025/09/17Landwork青山ビル(ヒューリック外苑前ビル)のテナント募集中区画
| 階数 | 面積 | 賃料(共益費含む) | 保証金 | 入居可能日 | 検討リスト | 詳細 |
|---|---|---|---|---|---|---|
| 10 | 51.60坪 | 1,548,000円/月(30,000円/坪) | 1,125万円 | 2026年1月中旬 |
…新着物件
アクセス
Landwork青山ビル(ヒューリック外苑前ビル)の物件情報
Landwork青山ビル(ヒューリック外苑前ビル)(港区北青山)は外苑前駅(3番出口)から徒歩2分の賃貸オフィスです。
スタジアム通り沿いに立地する本物件は、視認性に優れたミラーガラスの外観が特徴。1階には大手コーヒーチェーンが入居しており、来訪者へ案内する際の目印にもなるでしょう。
基準階は最大約150坪と広さがありながら、分割対応の実績もあるため、ワンフロアを使いたい企業から、スモールスタートを希望するチームまで、さまざまなニーズに応えられる柔軟さがあります。
共用部にはEVが2基設置され、エレベーターホールは石材を基調とした落ち着きのある内装。日々の通勤時や来客対応のシーンでも安心感があります。
オフィス街と文化施設が共存する北青山エリアで、利便性と働きやすさを両立した環境をお探しの企業様におすすめの一棟です。
Landwork青山ビル(ヒューリック外苑前ビル)は外苑前駅(3番出口)の他に青山一丁目駅(0番出口)徒歩11分、表参道駅(A3番出口)徒歩12分で利用も可能です。


