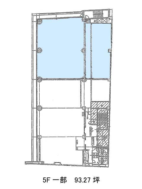
5階は現在募集がありません
SIビル青山 5階
物件概要
SIビル青山のテナント募集中区画
現在、空室がございません。
アクセス
SIビル青山の物件情報
SIビル青山(港区北青山)は青山一丁目駅(0番出口)から徒歩2分の賃貸オフィスです。外観は全体的に明るい色合いで、特徴的なデザインとなっております。エントランスホールやエレベーターホールは清潔感があり広々としていて、開放感と高級感を感じられます。また周辺には、コンビニや飲食店などがあるため、ランチも楽しめるでしょう。ビル内にはOAフロアが備えられており、トイレは男女別となっております。セキュリティは機械警備を導入しているため、安心です。駐車場設備も備えております。SIビル青山は青山一丁目駅(0番出口)の他に外苑前駅(4a番出口)徒歩5分、乃木坂駅(1番出口)徒歩13分で利用も可能です。

