日新青山ビル 6階
物件概要
物件番号
142-00173-60物件名
日新青山ビル所在地
- 東京都港区北青山3-2-4
- アクセスマップ
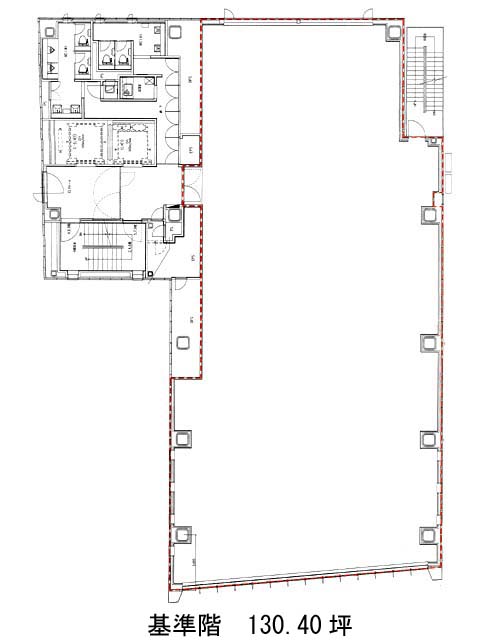
面積
130.40坪賃料(共益費含)
:応相談応相談
入居日
2026年7月上旬保証金
応相談礼金
なし更新料
なし償却費
なし竣工
2009年10月構造
S造規模
地上9階/地下1階トイレ
男女別空調
個別空調エレベーター
有セキュリティ
駐車場
有耐震
新耐震基準基準階天井高
2900mm空室延床面積
130.40坪情報更新日
2026/01/09日新青山ビルのテナント募集中区画
| 階数 | 面積 | 賃料(共益費含む) | 保証金 | 入居可能日 | 検討リスト | 詳細 |
|---|---|---|---|---|---|---|
| 6 | 130.40坪 | 応相談(応相談) | 応相談 | 2026年7月上旬 |
…新着物件
アクセス
日新青山ビルの物件情報
日新青山ビル(港区北青山)は外苑前駅(3番出口)から徒歩3分の賃貸オフィスです。2009年竣工の物件ということもあり、建物自体が綺麗です。外観は全体的にシックな色合いで、前面ガラス張りになっているため、スタイリッシュな印象があります。エントランスホールやエレベーターホールは広々としており、開放感と清潔感を感じられます。ビルの1階には銀行が入っているため、休憩時などに活用しやすいでしょう。ビル内にはOAフロアが備えられており、トイレは男女別となっております。日新青山ビルは外苑前駅(3番出口)の他に表参道駅(A3番出口)徒歩8分、青山一丁目駅(0番出口)徒歩12分で利用も可能です。

