9階は現在募集がありません
日新青山ビル 9階
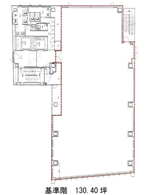
物件概要
日新青山ビルのテナント募集中区画
現在、空室がございません。
日新青山ビルのアクセス
日新青山ビルの物件情報
日新青山ビル(港区北青山)は外苑前駅(3番出口)から徒歩3分の賃貸オフィスです。2009年竣工の物件ということもあり、建物自体が綺麗です。外観は全体的にシックな色合いで、前面ガラス張りになっているため、スタイリッシュな印象があります。エントランスホールやエレベーターホールは広々としており、開放感と清潔感を感じられます。ビルの1階には銀行が入っているため、休憩時などに活用しやすいでしょう。ビル内にはOAフロアが備えられており、トイレは男女別となっております。日新青山ビルは外苑前駅(3番出口)の他に表参道駅(A3番出口)徒歩8分、青山一丁目駅(0番出口)徒歩12分で利用も可能です。

