5階は現在募集がありません
JRE青山クリスタルビル 5階
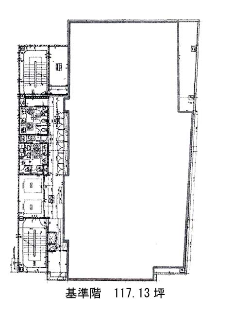
物件概要
JRE青山クリスタルビルのテナント募集中区画
現在、空室がございません。
JRE青山クリスタルビルのアクセス
JRE青山クリスタルビルの物件情報
JRE青山クリスタルビル(港区北青山)は表参道駅(A3番出口)から徒歩3分の賃貸オフィスです。外観は全体的に重厚感のある色合いで、シンプルなデザインとなっております。エントランスホールやエレベーターホールは清潔感があり、落ち着いた空間となっております。また周辺には、コンビニや飲食店などがあるため、ランチも楽しめるでしょう。ビル内にはOAフロアが備えられており、トイレは男女別、セキュリティは機械警備を導入しております。耐震性は新耐震基準であるため、安心です。駐車場も完備してあるため、車の利用もしやすい環境となっております。JRE青山クリスタルビルは表参道駅(A3番出口)の他に外苑前駅(3番出口)徒歩7分、明治神宮前駅(出口1)徒歩12分で利用も可能です。

