NS麻布十番ビルのテナント募集中区画
| 階数 | 面積 | 賃料(共益費含む) | 保証金 | 入居可能日 | 検討リスト | 詳細 |
|---|---|---|---|---|---|---|
| 12-13F | 70.02坪 | 1,925,550円/月(27,500円/坪) | 1,232万円 | 即 | ||
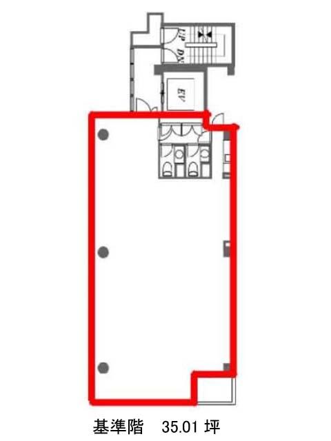
| 11 | 35.01坪 | 962,775円/月(27,500円/坪) | 616万円 | 2026年6月中旬 | ||
| 12 | 35.01坪 | 962,775円/月(27,500円/坪) | 616万円 | 即 |
…新着物件
アクセス
NS麻布十番ビルの物件情報
NS麻布十番ビル(港区麻布十番)は麻布十番駅(1番出口)から徒歩3分の賃貸オフィスです。NS麻布十番ビルは麻布十番駅(1番出口)の他に白金高輪駅(4番出口)徒歩14分、赤羽橋駅(中之橋口)徒歩15分で利用も可能です。

