地下1階 B1Aは現在募集がありません
3フロア募集区画あり

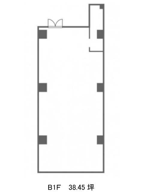
NS麻布十番ビル 地下1階 B1A

前の写真 次の写真

物件概要

物件番号

144-00131-20

物件名

NS麻布十番ビル

所在地

面積

38.45坪

賃料(共益費含)


入居日

募集終了

保証金

礼金

更新料

償却費

竣工

2008年8月

構造

RC

規模

地上13階/地下1階

トイレ

空調

個別空調

エレベーター

セキュリティ

駐車場

耐震

新耐震基準

基準階天井高

3000mm

空室延床面積

105.03坪

最寄駅

情報更新日

2026/03/03

NS麻布十番ビルのテナント募集中区画

階数 面積 賃料(共益費含む) 保証金 入居可能日 検討リスト 詳細
11 35.01坪 962,775円/月(27,500円/坪) 616万円 2026年7月上旬
12 35.01坪 962,775円/月(27,500円/坪) 616万円
13 35.01坪 962,775円/月(27,500円/坪) 616万円 2026年5月上旬
…新着物件

NS麻布十番ビルのアクセス

NS麻布十番ビルの物件情報

NS麻布十番ビル(港区麻布十番)は麻布十番駅(1番出口)から徒歩3分の賃貸オフィスです。
NS麻布十番ビルは麻布十番駅(1番出口)の他に白金高輪駅(4番出口)徒歩14分、赤羽橋駅(中之橋口)徒歩15分で利用も可能です。

近隣のエリア・駅から探す