4階は現在募集がありません
いちご渋谷宇田川町ビル 4階
物件概要
いちご渋谷宇田川町ビルのテナント募集中区画
現在、空室がございません。
いちご渋谷宇田川町ビルのアクセス
いちご渋谷宇田川町ビルの物件情報
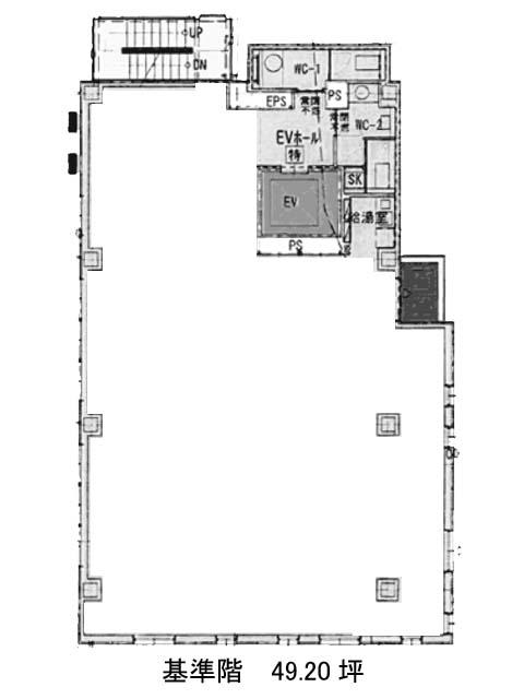
いちご渋谷宇田川町ビル(渋谷区宇田川町)は渋谷駅(A2番出口)から徒歩6分の賃貸オフィスです。2016年竣工、地上9階建S造のビルです。白い壁面に、ランダムに設置されたガラス窓が特徴的です。基準階面積は49.20坪。室内に出ている柱が少なく、レイアウトがしやすいでしょう。EV・個別空調・OAフロア・給湯室・貸室外の男女別トイレ・非常階段1箇所といった設備仕様をしています。1・2階は店舗として貸出しており、テナント・物販の他飲食店も相談可能です。昼夜問わず人通りの多いエリアでビジネスチャンスが広がるでしょう。いちご渋谷宇田川町ビルは渋谷駅(A2番出口)の他に神泉駅(北口)徒歩12分、代々木公園駅(2番出口)徒歩12分で利用も可能です。

