VORT渋谷Ⅱ 1-2F
物件概要
物件番号
155-00132-1物件名
VORT渋谷Ⅱ所在地
- 東京都渋谷区宇田川町10-3
- アクセスマップ
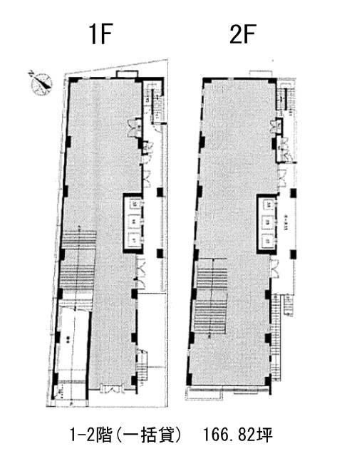
面積
166.82坪賃料(共益費含)
月額5,321,558円(31,900円/坪)
入居日
即保証金
38,702,240円礼金
1ケ月更新料
新1ケ月償却費
なし竣工
2006年8月構造
RC規模
地上9階/地下1階トイレ
男女別空調
エレベーター
有セキュリティ
駐車場
有耐震
新耐震基準基準階天井高
空室延床面積
360.68坪情報更新日
2025/11/26VORT渋谷Ⅱのテナント募集中区画
| 階数 | 面積 | 賃料(共益費含む) | 保証金 | 入居可能日 | 検討リスト | 詳細 |
|---|---|---|---|---|---|---|
| 1-2F | 166.82坪 | 5,321,558円/月(31,900円/坪) | 3,870万円 | 即 | ||
| 5 | 96.93坪 | 2,985,444円/月(30,800円/坪) | 1,357万円 | 2026年3月上旬 | ||
| 6 | 96.93坪 | 2,985,444円/月(30,800円/坪) | 1,357万円 | 2026年3月上旬 |
…新着物件
アクセス
VORT渋谷Ⅱの物件情報
VORT渋谷Ⅱ(渋谷区宇田川町)は渋谷駅(A2番出口)から徒歩7分の賃貸オフィスです。2006年竣工、渋谷エリアに立地する地上9階・地下2階建ての賃貸オフィスビル。鉄骨鉄筋コンクリート造で、新耐震基準に対応しているため、耐震性を重視する企業にもおすすめです。白を基調としたガラス張りのスタイリッシュな外観で、井の頭通り沿いという視認性の高い立地もポイント。基準階は約97.84坪、天井高2,700mmの開放感ある空間で、OAフロア・個別空調・光ファイバー対応と、快適なオフィス環境が整っています。エレベーターは11人乗りが3基、機械式駐車場も併設されており、ビル全体として高い利便性を備えています。セキュリティには機械警備を採用し、24時間いつでも安心して利用可能。周辺には多彩な飲食店やカフェ、東急ハンズ・郵便局なども徒歩圏内にあり、ビジネスに必要な利便性がギュッと詰まったロケーションです。VORT渋谷Ⅱは渋谷駅(A2番出口)の他に代々木公園駅(2番出口)徒歩12分、神泉駅(北口)徒歩12分で利用も可能です。

