9階は現在募集がありません
渋谷プライムプラザ 9階
物件概要
渋谷プライムプラザのテナント募集中区画
現在、空室がございません。
渋谷プライムプラザのアクセス
渋谷プライムプラザの物件情報
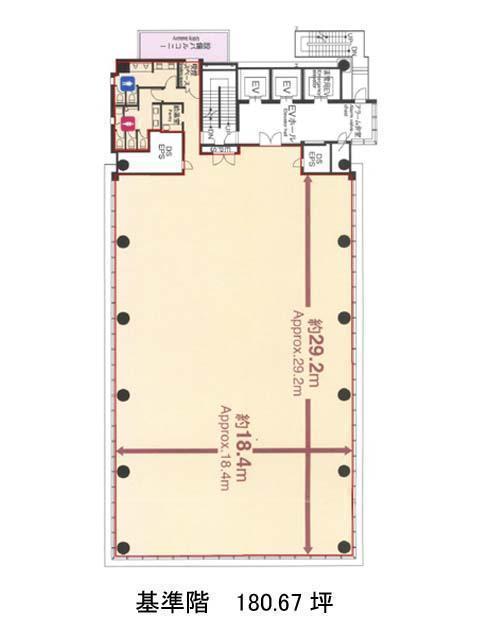
渋谷プライムプラザ(渋谷区円山町)は神泉駅(北口)から徒歩3分の賃貸オフィスです。2007年竣工、渋谷エリアに位置する地上13階・地下1階建ての大規模オフィスビル。鉄骨造(一部鉄筋コンクリート造)の堅牢な構造で、新耐震基準に適合しています。基準階は約180坪とゆとりがあり、天井高は最大3,300mm(一部2,700mm)と高めに設計。柱のない整形フロアは、自由なレイアウト設計が可能です。OAフロア・個別空調・男女別トイレ・光ファイバー対応と、日々の業務を支える機能も充実。セキュリティ面では24時間有人管理と機械警備を併用し、非接触型ICカードによる入退室管理も採用。非常用発電機を備え、BCP対策にも対応しています。エレベーターは3基、敷地内に駐車場もあり、1階にはコンビニが入居。飲食店やカフェ、郵便局も周辺に揃い、ビジネスに適した高い利便性が魅力です。
渋谷プライムプラザは神泉駅(北口)の他に渋谷駅(西口)徒歩6分で利用も可能です。

