7階は現在募集がありません
2フロア募集区画あり

新大宗道玄坂上ビル 7階

前の写真 次の写真

物件概要

物件番号

156-00007-70

物件名

新大宗道玄坂上ビル

所在地

面積

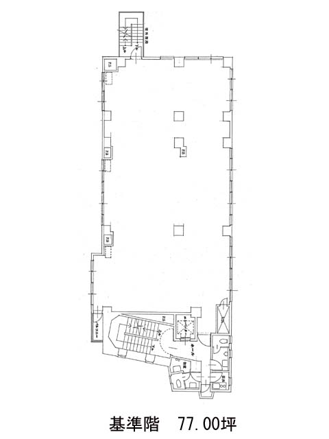
77.00坪

賃料(共益費含)


入居日

募集終了

保証金

礼金

更新料

償却費

竣工

1975年4月

構造

SRC

規模

地上12階/地下2階

トイレ

男女別

空調

個別空調

エレベーター

セキュリティ

駐車場

耐震

旧耐震基準

基準階天井高

空室延床面積

118.00坪

最寄駅

情報更新日

2026/04/20

新大宗道玄坂上ビルのテナント募集中区画

階数 面積 賃料(共益費含む) 保証金 入居可能日 検討リスト 詳細
4 41.00坪 972,125円/月(23,710円/坪) 574万円
8 77.00坪 1,778,700円/月(23,100円/坪) 1,078万円
…新着物件

新大宗道玄坂上ビルのアクセス

新大宗道玄坂上ビルの物件情報

新大宗道玄坂上ビル(渋谷区円山町)は神泉駅(北口)から徒歩3分の賃貸オフィスです。
1975年竣工、地上12階地下2階建RC造のビルです。基壇部は黒、高層部は白とコントラストのはっきりとした外観をしています。基準階面積は77.00坪。すっきりとした長方形の間取りで、オフィス家具の配置がしやすいでしょう。ビルの設備仕様は、EV1基・駐車場・非常階段・個別空調・貸室外の男女別トイレ・給湯室があります。エントランスまわりは黒の天然石を使用し、すっきりとした内装をしています。ビルの管理状態が良く、築年数を感じさせない清潔感があります。
新大宗道玄坂上ビルは神泉駅(北口)の他に渋谷駅(西口)徒歩6分、駒場東大前駅(東口)徒歩15分で利用も可能です。

近隣のエリア・駅から探す