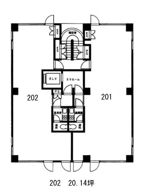
アルカサル恵比寿 2階 202
物件概要
アルカサル恵比寿のテナント募集中区画
| 階数 | 面積 | 賃料(共益費含む) | 保証金 | 入居可能日 | 検討リスト | 詳細 |
|---|---|---|---|---|---|---|
| 2 | 20.14坪 | 応相談(応相談) | 応相談 | 即 |
…新着物件
アルカサル恵比寿のアクセス
アルカサル恵比寿の物件情報
アルカサル恵比寿(渋谷区恵比寿)は恵比寿駅(東口)から徒歩7分の賃貸オフィスです。アルカサル恵比寿は恵比寿駅(東口)の他に広尾駅(2番出口)徒歩12分で利用も可能です。

