6階は現在募集がありません
1フロア募集区画あり

UNパークビル 6階

前の写真 次の写真

物件概要

物件番号

160-00006-40

物件名

UNパークビル

所在地

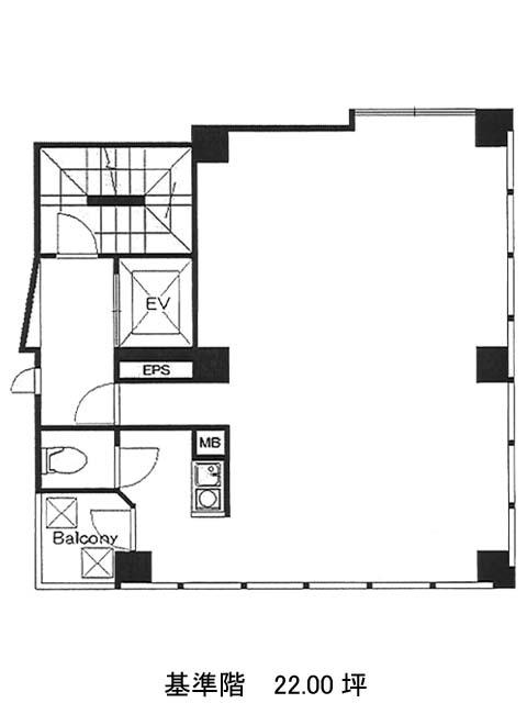
面積

22.00坪

賃料(共益費含)


入居日

募集終了

保証金

礼金

更新料

償却費

竣工

1986年10月

構造

SRC

規模

地上7階

トイレ

男女共用

空調

個別空調

エレベーター

セキュリティ

駐車場

耐震

新耐震基準

基準階天井高

空室延床面積

22.00坪

最寄駅

情報更新日

2026/01/19

UNパークビルのテナント募集中区画

階数 面積 賃料(共益費含む) 保証金 入居可能日 検討リスト 詳細
7 22.00坪 618,860円/月(28,130円/坪) 294万円 2026年6月上旬
…新着物件

UNパークビルのアクセス

UNパークビルの物件情報

UNパークビル(渋谷区恵比寿西)は恵比寿駅(4番出口)から徒歩2分の賃貸オフィスです。
UNパークビルは恵比寿駅(4番出口)の他に代官山駅(東口)徒歩7分、中目黒駅(出口)徒歩13分で利用も可能です。

近隣のエリア・駅から探す