UNパークビル 7階
物件概要
物件番号
160-00006-41物件名
UNパークビル所在地
- 東京都渋谷区恵比寿西1-19-6
- アクセスマップ
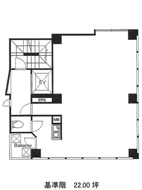
面積
22.00坪賃料(共益費含)
月額618,860円(28,130円/坪)
入居日
2026年6月上旬保証金
2,940,036円礼金
1ケ月更新料
新1ケ月償却費
2ケ月竣工
1986年10月構造
SRC規模
地上7階トイレ
男女共用空調
個別空調エレベーター
有セキュリティ
駐車場
無耐震
新耐震基準基準階天井高
空室延床面積
22.00坪情報更新日
2026/01/19UNパークビルのテナント募集中区画
| 階数 | 面積 | 賃料(共益費含む) | 保証金 | 入居可能日 | 検討リスト | 詳細 |
|---|---|---|---|---|---|---|
| 7 | 22.00坪 | 618,860円/月(28,130円/坪) | 294万円 | 2026年6月上旬 |
…新着物件
UNパークビルのアクセス
UNパークビルの物件情報
UNパークビル(渋谷区恵比寿西)は恵比寿駅(4番出口)から徒歩2分の賃貸オフィスです。UNパークビルは恵比寿駅(4番出口)の他に代官山駅(東口)徒歩7分、中目黒駅(出口)徒歩13分で利用も可能です。

