土屋ビルのテナント募集中区画
| 階数 | 面積 | 賃料(共益費含む) | 保証金 | 入居可能日 | 検討リスト | 詳細 |
|---|---|---|---|---|---|---|
| 4 | 41.75坪 | 1,239,975円/月(29,700円/坪) | 901万円 | 2026年1月 |
…新着物件
アクセス
土屋ビルの物件情報
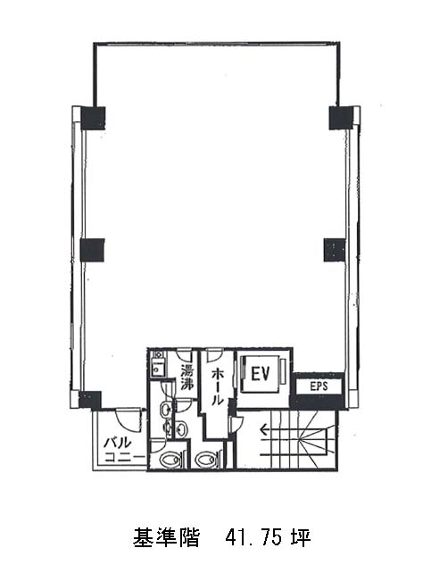
土屋ビル(渋谷区渋谷)は渋谷駅(新南口)から徒歩3分の賃貸オフィスです。外観は洗練されたデザインで、スタイリッシュな印象です。周辺には、コンビニや飲食店などがあるため、ランチが楽しめそうです。室内は基準階が約41坪あり、長方形の整形オフィスのため、効率の良いレイアウトが組めそうです。ビル内にはOAフロアが備えられており、個別空調を完備、トイレは男女別となっておりますので、設備面が充実しております。セキュリティは機械警備を導入、耐震性は新耐震基準であるため、安心です。土屋ビルは渋谷駅(新南口)の他に代官山駅(西口)徒歩14分、恵比寿駅(2番出口)徒歩15分で利用も可能です。

