7階は現在募集がありません
1フロア募集区画あり

土屋ビル 7階

前の写真 次の写真

物件概要

物件番号

166-00141-60

物件名

土屋ビル

所在地

面積

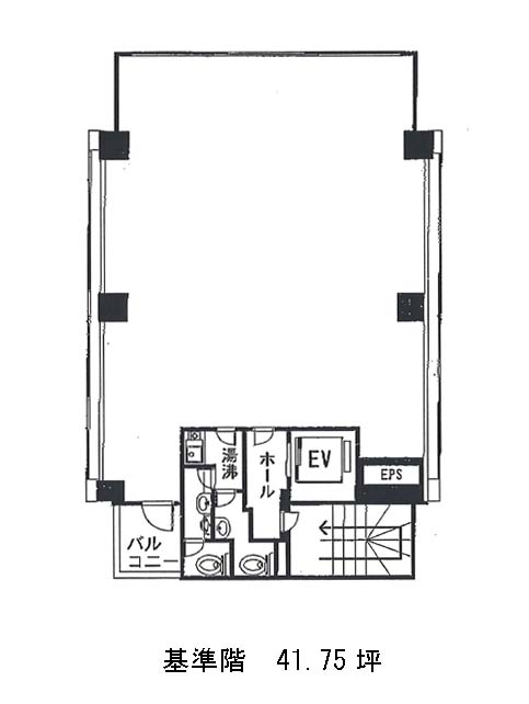
41.75坪

賃料(共益費含)


入居日

募集終了

保証金

礼金

更新料

償却費

竣工

1991年10月

構造

S造

規模

地上9階

トイレ

男女別

空調

個別空調

エレベーター

セキュリティ

駐車場

耐震

新耐震基準

基準階天井高

空室延床面積

41.75坪

最寄駅

情報更新日

2025/09/17

土屋ビルのテナント募集中区画

階数 面積 賃料(共益費含む) 保証金 入居可能日 検討リスト 詳細
4 41.75坪 1,239,975円/月(29,700円/坪) 901万円 2026年1月
…新着物件

アクセス

土屋ビルの物件情報

土屋ビル(渋谷区渋谷)は渋谷駅(新南口)から徒歩3分の賃貸オフィスです。
外観は洗練されたデザインで、スタイリッシュな印象です。周辺には、コンビニや飲食店などがあるため、ランチが楽しめそうです。室内は基準階が約41坪あり、長方形の整形オフィスのため、効率の良いレイアウトが組めそうです。ビル内にはOAフロアが備えられており、個別空調を完備、トイレは男女別となっておりますので、設備面が充実しております。セキュリティは機械警備を導入、耐震性は新耐震基準であるため、安心です。
土屋ビルは渋谷駅(新南口)の他に代官山駅(西口)徒歩14分、恵比寿駅(2番出口)徒歩15分で利用も可能です。

近隣のエリア・駅から探す