2階は現在募集がありません
青山ファーストビル 2階
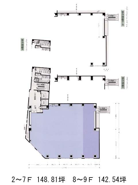
物件概要
青山ファーストビルのテナント募集中区画
現在、空室がございません。
青山ファーストビルのアクセス
青山ファーストビルの物件情報
青山ファーストビル(渋谷区渋谷)は表参道駅(B1番出口)から徒歩5分の賃貸オフィスです。青山ファーストビルは表参道駅(B1番出口)の他に渋谷駅(B4番出口)徒歩9分、明治神宮前駅(7番出口)徒歩14分で利用も可能です。

