青山ファーストビル 6階
物件概要
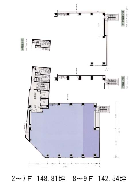
青山ファーストビルのテナント募集中区画
| 階数 | 面積 | 賃料(共益費含む) | 保証金 | 入居可能日 | 検討リスト | 詳細 |
|---|---|---|---|---|---|---|
| 6 | 148.82坪 | 応相談(応相談) | 応相談 | 2026年4月上旬 |
…新着物件
アクセス
青山ファーストビルの物件情報
青山ファーストビル(渋谷区渋谷)は表参道駅(B1番出口)から徒歩5分の賃貸オフィスです。青山ファーストビルは表参道駅(B1番出口)の他に渋谷駅(B4番出口)徒歩9分、明治神宮前駅(7番出口)徒歩14分で利用も可能です。

