6階は現在募集がありません
渋谷S-6ビル 6階
物件概要
渋谷S-6ビルのテナント募集中区画
現在、空室がございません。
アクセス
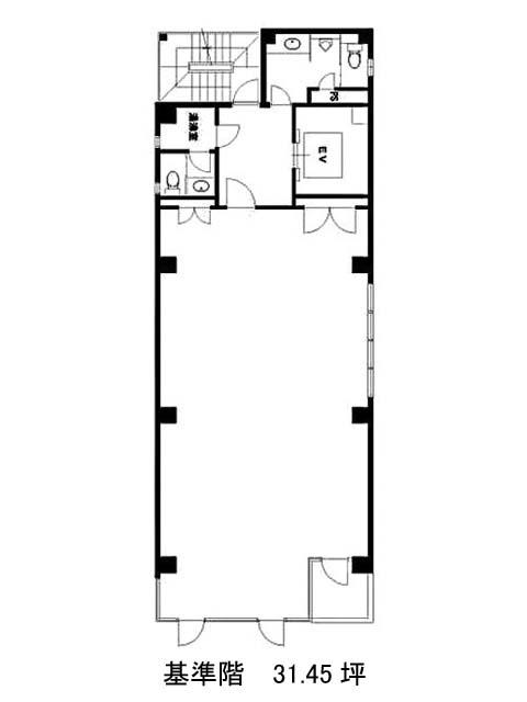
渋谷S-6ビルの物件情報
渋谷S-6ビル(渋谷区渋谷)は渋谷駅(B1番出口)から徒歩6分の賃貸オフィスです。渋谷S-6ビルは渋谷駅(B1番出口)の他に表参道駅(B2番出口)徒歩8分、明治神宮前駅(7番出口)徒歩14分で利用も可能です。

