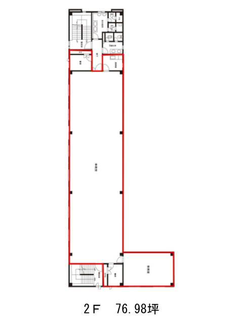
2階は現在募集がありません
NX渋谷ビル 2階
物件概要
NX渋谷ビルのテナント募集中区画
現在、空室がございません。
アクセス
NX渋谷ビルの物件情報
NX渋谷ビル(渋谷区渋谷)は渋谷駅(新南口)から徒歩4分の賃貸オフィスです。
渋谷駅周辺で、落ち着きと利便性のバランスが取れたオフィス環境を求める企業にとって、注目したい一棟です。明治通り至近の立地でありながら、比較的静かなエリアに位置しており、業務に集中しやすい環境が整っています。
建物は鉄骨造・地上3階建てで、新耐震基準に適合。1992年竣工ながら、堅実な構造と必要な設備が整っており、快適な執務空間を提供します。個別空調や男女別トイレに加え、機械式駐車場も備えているため、車利用の多い企業にも対応可能です。
エレベーターは設置されていないものの、3階建ての構成のため、フロア間の移動はスムーズです。周辺には飲食店やコンビニエンスストア、銀行、郵便局などが点在しており、日常業務を支える利便性にも優れています。
NX渋谷ビルは渋谷駅(新南口)の他に恵比寿駅(2番出口)徒歩12分、代官山駅(西口)徒歩12分で利用も可能です。

