7階は現在募集がありません
1フロア募集区画あり

渋谷第一生命ビル 7階

前の写真 次の写真

物件概要

物件番号

166-00050-141

物件名

渋谷第一生命ビル

所在地

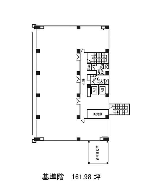
面積

162.00坪

賃料(共益費含)


入居日

募集終了

保証金

礼金

更新料

償却費

竣工

1979年2月

構造

SRC

規模

地上10階/地下1階

トイレ

男女別

空調

セントラル+個別空調

エレベーター

セキュリティ

駐車場

耐震

旧耐震基準

基準階天井高

2600mm

空室延床面積

69.28坪

最寄駅

情報更新日

2026/04/06

渋谷第一生命ビルのテナント募集中区画

階数 面積 賃料(共益費含む) 保証金 入居可能日 検討リスト 詳細
6 69.28坪 応相談(応相談) 応相談
…新着物件

渋谷第一生命ビルのアクセス

渋谷第一生命ビルの物件情報

渋谷第一生命ビル(渋谷区渋谷)は渋谷駅(C1番出口)から徒歩2分の賃貸オフィスです。
明治通り沿いに位置し、渋谷警察署の隣という視認性の高いロケーション。1979年竣工の地上10階・地下1階建て、鉄骨鉄筋コンクリート造のオフィスビルで、新耐震基準に適合し、耐震補強工事も実施済みです。安定感ある構造に加え、渋谷駅から徒歩3分というアクセスの良さも魅力です。
フロアは分割貸しに柔軟に対応しており、企業規模や業種に応じて多様な使い方が可能。小規模区画での利用ニーズにも応えられる点は、立地重視の企業にとって大きなメリットです。空調はセントラル方式と個別方式の併用で、快適な執務環境をサポート。エレベーターは2基設置されており、24時間利用も可能です。
機械式駐車場は最大30台まで収容可能。セキュリティは機械警備を導入し、安心の入退館管理を実現しています。1階にはコンビニエンスストアやカフェが入居しており、周辺には飲食店や商業施設も充実。日常業務の利便性とアクセス性を兼ね備えた、渋谷エリアの実力派オフィスビルです。
渋谷第一生命ビルは渋谷駅(C1番出口)の他に表参道駅(B1番出口)徒歩14分、神泉駅(北口)徒歩15分で利用も可能です。

近隣のエリア・駅から探す