1階は現在募集がありません
4フロア募集区画あり

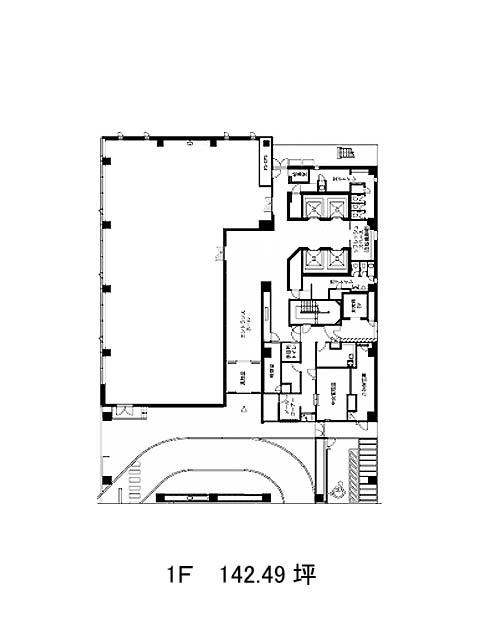
ネクストサイト渋谷ビル 1階

前の写真 次の写真

物件概要

物件番号

166-00520-12

物件名

ネクストサイト渋谷ビル

所在地

面積

142.49坪

賃料(共益費含)


入居日

募集終了

保証金

礼金

更新料

償却費

竣工

2016年5月

構造

S造

規模

地上12階/地下1階

トイレ

男女別

空調

個別空調

エレベーター

セキュリティ

駐車場

耐震

新耐震基準

基準階天井高

2800mm

空室延床面積

1030.84坪

最寄駅

情報更新日

2025/11/04

ネクストサイト渋谷ビルのテナント募集中区画

階数 面積 賃料(共益費含む) 保証金 入居可能日 検討リスト 詳細
2 136.63坪 応相談(応相談) 応相談
3 298.07坪 応相談(応相談) 応相談
9 298.07坪 応相談(応相談) 応相談 2026年1月上旬
10 298.07坪 応相談(応相談) 応相談
…新着物件

アクセス

ネクストサイト渋谷ビルの物件情報

ネクストサイト渋谷ビル(渋谷区渋谷)は渋谷駅(C1番出口)から徒歩9分の賃貸オフィスです。
2016年竣工の物件ということもあり、建物自体がとても綺麗です。またビルの1Fにはコンビニが入っているため、休憩時などに活用しやすいでしょう。エントランスホールや共有部、室内は白を基調とした、清潔感あふれる空間となっております。基準階は約298坪あり、室内はL字型の形をしていますが、柱は壁に沿って設置されているため、比較的レイアウトは組みやすいでしょう。ビル内にはOAフロア、個別空調、男女別トイレ、グリッドシステム天井などが備えられています。さらに、緊急時の非常用電源や制震構造なども兼ね備えた、安全性の高いハイスペックな物件です。
ネクストサイト渋谷ビルは渋谷駅(C1番出口)の他に表参道駅(B1番出口)徒歩9分で利用も可能です。

近隣のエリア・駅から探す