7階は現在募集がありません
SK青山ビル 7階
物件概要
SK青山ビルのテナント募集中区画
現在、空室がございません。
SK青山ビルのアクセス
SK青山ビルの物件情報
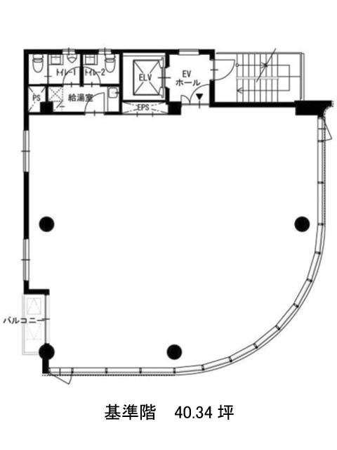
SK青山ビル(渋谷区渋谷)は渋谷駅(20a番出口)から徒歩5分の賃貸オフィスです。美竹通りの交差点角地に立地する、視認性の高い物件です。また、2016年竣工の物件ということもあり、建物自体が綺麗です。外観は全面ガラス張りで、交差点に沿って丸いフォルムとなっているため、とてもスタイリッシュな印象があります。ビルの1Fには飲食店が入っているため、休憩時などに活用しやすいでしょう。ビル内にはOAフロアが備えられており、個別空調も完備されていて、トイレも男女別となっているため、設備面は充実しております。エレベーターは1基設置されており、耐震性も新耐震基準であるため、安心です。SK青山ビルは渋谷駅(20a番出口)の他に表参道駅(B2番出口)徒歩9分、明治神宮前駅(7番出口)徒歩14分で利用も可能です。

