2階は現在募集がありません
1フロア募集区画あり

PMO渋谷 2階

前の写真 次の写真

物件概要

物件番号

166-00526-1

物件名

PMO渋谷

所在地

面積

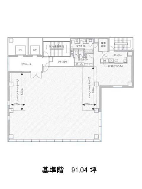
91.04坪

賃料(共益費含)


入居日

募集終了

保証金

礼金

更新料

償却費

竣工

2017年6月

構造

CFT造

規模

地上14階/地下1階

トイレ

男女別

空調

個別空調

エレベーター

セキュリティ

駐車場

耐震

新耐震基準

基準階天井高

2700(2~10F)~3000(11~13F)mm

空室延床面積

91.04坪

最寄駅

情報更新日

2026/05/12

PMO渋谷のテナント募集中区画

階数 面積 賃料(共益費含む) 保証金 入居可能日 検討リスト 詳細
9 91.04坪 応相談(応相談) 応相談 2026年12月上旬
…新着物件

PMO渋谷のアクセス

PMO渋谷の物件情報

PMO渋谷(渋谷区渋谷)は渋谷駅(B1番出口)から徒歩2分の賃貸オフィスです。
2017年6月竣工、地上14階地下1階CFT構造のビルです。シリーズのオフィスビルと同様、ミラーガラス貼りの外壁にモノトーンでまとめられたスタイリッシュな外観をしています。基準階面積は91.04坪。設備仕様としてEV2基(乗用15人乗り・非常用17人乗り)・駐車場・個別空調・男女別トイレ・OAフロアがあります。天井高2700㎜で開放感のある室内となるでしょう。セキュリティとして安心の機械警備があり、1階と各階にカードリーダーが設置されています。
PMO渋谷は渋谷駅(B1番出口)の他に表参道駅(B2番出口)徒歩12分、明治神宮前駅(7番出口)徒歩12分で利用も可能です。

近隣のエリア・駅から探す