5階は現在募集がありません
5フロア募集区画あり

PMO渋谷Ⅱ 5階

前の写真 次の写真

物件概要

物件番号

166-00549-1

物件名

PMO渋谷Ⅱ

所在地

面積

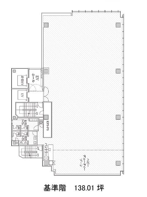
138.01坪

賃料(共益費含)


入居日

募集終了

保証金

礼金

更新料

償却費

竣工

2020年8月

構造

規模

地上11階/地下1階

トイレ

男女別

空調

個別空調

エレベーター

セキュリティ

駐車場

耐震

新耐震基準

基準階天井高

2800mm

空室延床面積

690.05坪

最寄駅

情報更新日

2025/11/05

PMO渋谷Ⅱのテナント募集中区画

階数 面積 賃料(共益費含む) 保証金 入居可能日 検討リスト 詳細
7 138.01坪 応相談(応相談) 応相談
8 138.01坪 応相談(応相談) 応相談
9 138.01坪 応相談(応相談) 応相談
10 138.01坪 応相談(応相談) 応相談 2026年6月上旬
11 138.01坪 応相談(応相談) 応相談
…新着物件

アクセス

PMO渋谷Ⅱの物件情報

PMO渋谷Ⅱ(渋谷区渋谷)は渋谷駅(C1番出口)から徒歩5分の賃貸オフィスです。
2020年竣工、地上11階地下1階建CFT構造の築浅ビルです。ミラーガラスが輝くスタイリッシュな外観が目をひくでしょう。EV・駐車場・機械警備・OAフロア・貸室外の男女別トイレといった設備仕様をしています。空調は個別空調を導入しています。フロアの一部がヘビーデューティーゾーンとなっており、重量のある機器等の置き場所によいでしょう。間取りはすっきりとした長方形をしており、レイアウトの自由度が高いでしょう。
PMO渋谷Ⅱは渋谷駅(C1番出口)の他に表参道駅(B1番出口)徒歩11分で利用も可能です。

近隣のエリア・駅から探す