PMO渋谷Ⅱ 9階
物件概要
PMO渋谷Ⅱのテナント募集中区画
| 階数 | 面積 | 賃料(共益費含む) | 保証金 | 入居可能日 | 検討リスト | 詳細 |
|---|---|---|---|---|---|---|
| 7 | 138.01坪 | 応相談(応相談) | 応相談 | 即 | ||
| 8 | 138.01坪 | 応相談(応相談) | 応相談 | 即 | ||
| 9 | 138.01坪 | 応相談(応相談) | 応相談 | 即 | ||
| 10 | 138.01坪 | 応相談(応相談) | 応相談 | 2026年6月上旬 | ||
| 11 | 138.01坪 | 応相談(応相談) | 応相談 | 即 |
…新着物件
アクセス
PMO渋谷Ⅱの物件情報
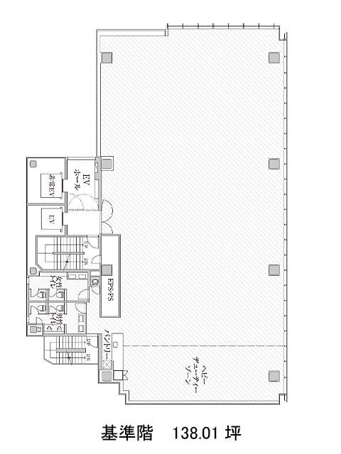
PMO渋谷Ⅱ(渋谷区渋谷)は渋谷駅(C1番出口)から徒歩5分の賃貸オフィスです。2020年竣工、地上11階地下1階建CFT構造の築浅ビルです。ミラーガラスが輝くスタイリッシュな外観が目をひくでしょう。EV・駐車場・機械警備・OAフロア・貸室外の男女別トイレといった設備仕様をしています。空調は個別空調を導入しています。フロアの一部がヘビーデューティーゾーンとなっており、重量のある機器等の置き場所によいでしょう。間取りはすっきりとした長方形をしており、レイアウトの自由度が高いでしょう。PMO渋谷Ⅱは渋谷駅(C1番出口)の他に表参道駅(B1番出口)徒歩11分で利用も可能です。

