渋谷董友ビルVのテナント募集中区画
| 階数 | 面積 | 賃料(共益費含む) | 保証金 | 入居可能日 | 検討リスト | 詳細 |
|---|---|---|---|---|---|---|
| 5 | 48.51坪 | 応相談(応相談) | 応相談 | 相談 |
…新着物件
アクセス
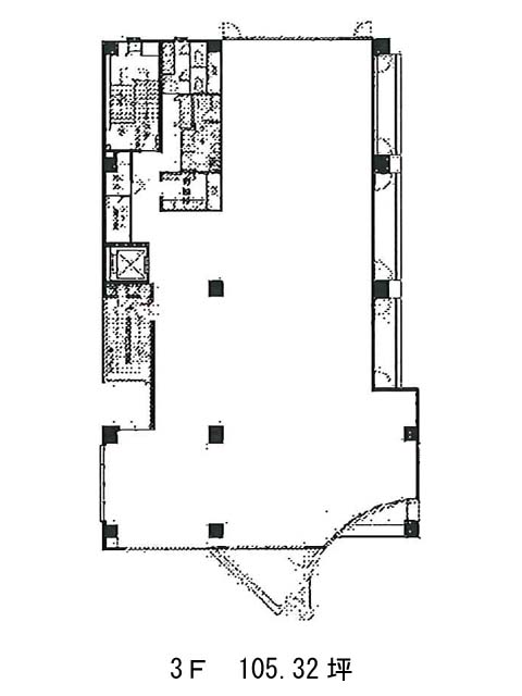
渋谷董友ビルVの物件情報
渋谷董友ビルV(渋谷区渋谷)は渋谷駅(B1番出口)から徒歩7分の賃貸オフィスです。1993年竣工、地上5階地下1階建のビルです。新耐震基準に適合しています。ブラウンの外壁で温かみのある外観をしています。EV・駐車場・個別空調・OAフロア・非常階段2箇所・男女別トイレといった設備仕様をしています。貸室は二面採光で大きなガラス窓から十分な採光が入りこむでしょう。都心でありながらも周辺は低層階の建物が多く、落ち着いた雰囲気のエリアです。近隣はデザイン性の高い分譲マンションが建ち並んでいます。渋谷董友ビルVは渋谷駅(B1番出口)の他に表参道駅(B2番出口)徒歩9分、明治神宮前駅(7番出口)徒歩11分で利用も可能です。

