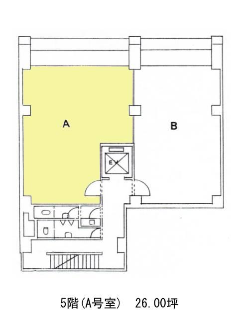
第1矢木ビル 5階 A
物件概要
第1矢木ビルのテナント募集中区画
| 階数 | 面積 | 賃料(共益費含む) | 保証金 | 入居可能日 | 検討リスト | 詳細 |
|---|---|---|---|---|---|---|
| 5 | 26.00坪 | 応相談(応相談) | 応相談 | 即 |
…新着物件
第1矢木ビルのアクセス
第1矢木ビルの物件情報
第1矢木ビル(渋谷区渋谷)は渋谷駅(C1番出口)から徒歩3分の賃貸オフィスです。第1矢木ビルは渋谷駅(C1番出口)の他に表参道駅(B1番出口)徒歩13分で利用も可能です。

