2階は現在募集がありません
1フロア募集区画あり

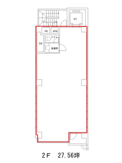
藤和宮益坂ビル 2階

前の写真 次の写真

物件概要

物件番号

166-00069-20

物件名

藤和宮益坂ビル

所在地

面積

27.56坪

賃料(共益費含)


入居日

募集終了

保証金

礼金

更新料

償却費

竣工

1988年2月

構造

SRC

規模

地上10階/地下1階

トイレ

男女共用

空調

個別空調

エレベーター

セキュリティ

駐車場

耐震

新耐震基準

基準階天井高

2500mm

空室延床面積

31.28坪

最寄駅

情報更新日

2026/05/22

藤和宮益坂ビルのテナント募集中区画

階数 面積 賃料(共益費含む) 保証金 入居可能日 検討リスト 詳細
7 31.28坪 応相談(応相談) 応相談 2026年6月中旬
…新着物件

藤和宮益坂ビルのアクセス

藤和宮益坂ビルの物件情報

藤和宮益坂ビル(渋谷区渋谷)は渋谷駅(B2番出口)から徒歩2分の賃貸オフィスです。
明治通りを東へ入ってすぐのところにある、地上10階・地下1階建てのビルです。外壁にベージュ色のパネルを使用した、落ち着いた雰囲気のビルです。基準階は31.28坪の長方形の間取りです。柱が邪魔にならない構造になっているので、レイアウトしやすいです。床は2way方式です。給湯設備とトイレは室内に設置されています。宮益坂下交差点からすぐの繁華街という好立地で、家電量販店が近くにあり人通りが多いので、店舗利用の場合は集客が期待できます。また、大通りに面しているので、車からも目につきやすいです。事務所として利用されることも可能です。駅近物件なので、通勤しやすいと思います。
藤和宮益坂ビルは渋谷駅(B2番出口)の他に表参道駅(B2番出口)徒歩12分、神泉駅(北口)徒歩13分で利用も可能です。

近隣のエリア・駅から探す