6階 分割は現在募集がありません
京セラ原宿ビル 6階 分割
物件概要
京セラ原宿ビルのテナント募集中区画
現在、空室がございません。
アクセス
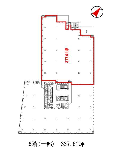
京セラ原宿ビルの物件情報
京セラ原宿ビル(渋谷区神宮前)は明治神宮前駅(7番出口)から徒歩4分の賃貸オフィスです。地上6階建て、明治通り沿いにある大型物件です。白く大きな建物に窓が並んだ清潔感を感じられる外観で、視認性も抜群です。リニューアル済のエントランスホールはゆったりと広く、黒を基調としたモダンな空間で、ホール内に置かれた水槽や彫刻のようなベンチも印象的です。基準階面積約1081坪のオフィスは様々な分割区画に対応しています。ビル内にはエレベーター4基、個別空調、OAフロア、男女別トイレ等が備えられています。併設の駐車場は機械式と平面を合わせて100台以上が収容可能。また屋上には入居者専用の広大なウッドデッキが設けられ、ランチタイムはもちろんのこと、アイデアを出し合う場面でも活用できそうです。構造面は鉄骨鉄筋コンクリート造、耐震工事も実施済みですので安心です。京セラ原宿ビルは明治神宮前駅(7番出口)の他に渋谷駅(B1番出口)徒歩8分、原宿駅(東口)徒歩8分で利用も可能です。

