サンポウ綜合ビル 1階 101
物件概要
物件番号
170-00047-10物件名
サンポウ綜合ビル所在地
- 東京都渋谷区神宮前6-5-6
- アクセスマップ
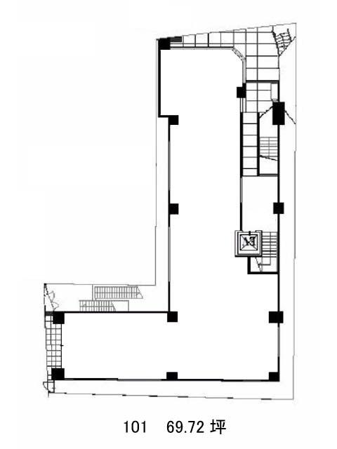
面積
69.72坪賃料(共益費含)
月額7,669,200円(110,000円/坪)
入居日
即保証金
55,776,000円礼金
なし更新料
新1ケ月償却費
1ケ月竣工
1974年1月構造
SRC規模
地上8階/地下1階トイレ
男女別空調
個別空調エレベーター
有セキュリティ
駐車場
無耐震
旧耐震基準基準階天井高
2300mm空室延床面積
168.47坪情報更新日
2026/01/20サンポウ綜合ビルのテナント募集中区画
…新着物件
アクセス
サンポウ綜合ビルの物件情報
サンポウ綜合ビル(渋谷区神宮前)は明治神宮前駅(出口1)から徒歩2分の賃貸オフィスです。明治通り沿い、表参道から神宮前交差点を曲がってすぐの好立地にあります。丸角の白いパネル張りに大きなガラス窓が連続した美しい外観です。1階に入居する店舗が特徴的ですので、目印として活用できます。ビルの設備面としましては、エレベーターが1基と個別空調を備え、光回線にも対応しています。給湯設備と男女別トイレは室外に置かれていますので、執務空間としての使い勝手は良さそうです。近くに郵便局があり、事務作業等に大変便利です。また、飲食店や店舗が充実するエリアですので、毎日のランチ選びも楽しめるでしょう。サンポウ綜合ビルは明治神宮前駅(出口1)の他に原宿駅(東口)徒歩6分、表参道駅(A2番出口)徒歩9分で利用も可能です。

