5階 504は現在募集がありません
4フロア募集区画あり

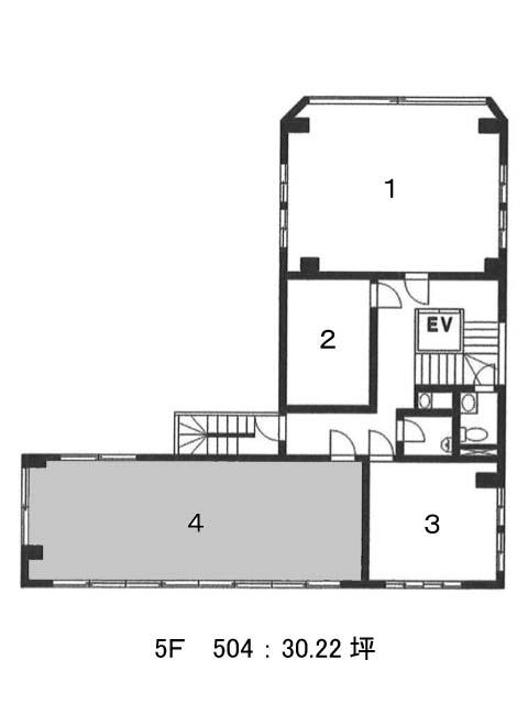
サンポウ綜合ビル 5階 504

前の写真 次の写真

物件概要

物件番号

170-00047-110

物件名

サンポウ綜合ビル

所在地

面積

30.22坪

賃料(共益費含)


入居日

募集終了

保証金

礼金

更新料

償却費

竣工

1974年1月

構造

SRC

規模

地上8階/地下1階

トイレ

男女別

空調

個別空調

エレベーター

セキュリティ

駐車場

耐震

旧耐震基準

基準階天井高

2300mm

空室延床面積

168.47坪

最寄駅

情報更新日

2025/11/19

サンポウ綜合ビルのテナント募集中区画

階数 面積 賃料(共益費含む) 保証金 入居可能日 検討リスト 詳細
1 69.72坪 7,669,200円/月(110,000円/坪) 5,577万円
3 32.25坪 1,028,775円/月(31,900円/坪) 748万円
5 33.25坪 1,097,250円/月(33,000円/坪) 798万円
6 33.25坪 1,097,250円/月(33,000円/坪) 798万円
…新着物件

アクセス

サンポウ綜合ビルの物件情報

サンポウ綜合ビル(渋谷区神宮前)は明治神宮前駅(出口1)から徒歩2分の賃貸オフィスです。
明治通り沿い、表参道から神宮前交差点を曲がってすぐの好立地にあります。丸角の白いパネル張りに大きなガラス窓が連続した美しい外観です。1階に入居する店舗が特徴的ですので、目印として活用できます。ビルの設備面としましては、エレベーターが1基と個別空調を備え、光回線にも対応しています。給湯設備と男女別トイレは室外に置かれていますので、執務空間としての使い勝手は良さそうです。近くに郵便局があり、事務作業等に大変便利です。また、飲食店や店舗が充実するエリアですので、毎日のランチ選びも楽しめるでしょう。
サンポウ綜合ビルは明治神宮前駅(出口1)の他に原宿駅(東口)徒歩6分、表参道駅(A2番出口)徒歩9分で利用も可能です。

近隣のエリア・駅から探す