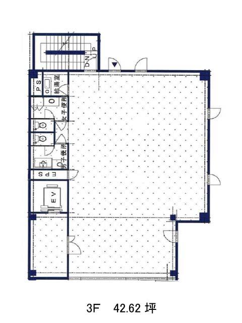
3階は現在募集がありません
青山MSビル 3階
物件概要
青山MSビルのテナント募集中区画
現在、空室がございません。
アクセス
青山MSビルの物件情報
青山MSビル(渋谷区神宮前)は外苑前駅(3番出口)から徒歩6分の賃貸オフィスです。外苑西通りに面し、ガラス張りの窓がV字に奥まった特徴的なデザインのため、視認性抜群です。エントランスや室内には自然光がよく入り、明るい雰囲気が好印象です。室内には柱がなくシンプルな間取りですので、レイアウトも無駄なく行えそうです。設備面は、エレベーター1基、個別空調、OAフロアが完備されており、室内のトイレは男女別の仕様と設備面も充実しています。また、通り沿いにカフェや飲食店が豊富に立地していますので、ランチ選びに困ることはなさそうです。青山MSビルは外苑前駅(3番出口)の他に表参道駅(A2番出口)徒歩9分、明治神宮前駅(出口1)徒歩13分で利用も可能です。

