4階は現在募集がありません
エムズ原宿 4階
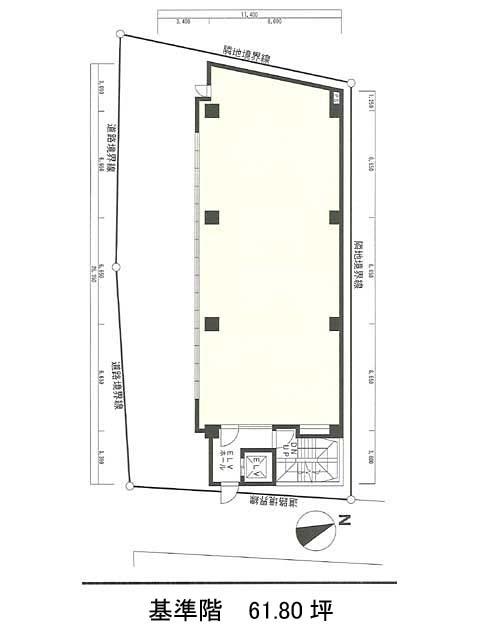
物件概要
エムズ原宿のテナント募集中区画
現在、空室がございません。
アクセス
エムズ原宿の物件情報
エムズ原宿(渋谷区神宮前)は明治神宮前駅(7番出口)から徒歩4分の賃貸オフィスです。エムズ原宿は明治神宮前駅(7番出口)の他に渋谷駅(B1番出口)徒歩8分、原宿駅(東口)徒歩8分で利用も可能です。

