ニュー關口ビルのテナント募集中区画
| 階数 | 面積 | 賃料(共益費含む) | 保証金 | 入居可能日 | 検討リスト | 詳細 |
|---|---|---|---|---|---|---|
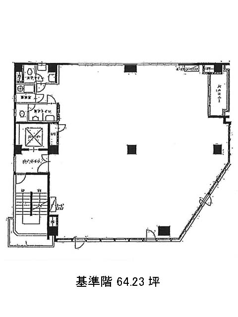
| 5 | 64.23坪 | 1,554,366円/月(24,200円/坪) | 950万円 | 即 |
…新着物件
アクセス
ニュー關口ビルの物件情報
ニュー關口ビル(渋谷区神宮前)は渋谷駅(B1番出口)から徒歩5分の賃貸オフィスです。明治通り沿いの角地にある地上9階建てです。凹凸のあるブロンズのパネル張りがレトロで印象的なデザインです。3面にわたり窓が帯状に連なっていますので、執務空間の採光や眺めも良いでしょう。設備面はエレベーター1基、個別空調、OAフロア、男女別トイレ等が備えられ充実しています。併設の駐車場を使ってお車の利用もしやすい環境となっています。また、耐震補強を完了していますので、構造面も安心いただけるかと思います。ビル周辺は開けた場所で比較的落ち着いた環境ですが、渋谷駅方面には多くの飲食店や金融機関などが集まり、利便性の大変高い立地です。ニュー關口ビルは渋谷駅(B1番出口)の他に明治神宮前駅(7番出口)徒歩7分、原宿駅(東口)徒歩11分で利用も可能です。

