原宿タウンホーム 7階 704
物件概要
物件番号
170-00009-148物件名
原宿タウンホーム所在地
- 東京都渋谷区神宮前1-1-1
- アクセスマップ
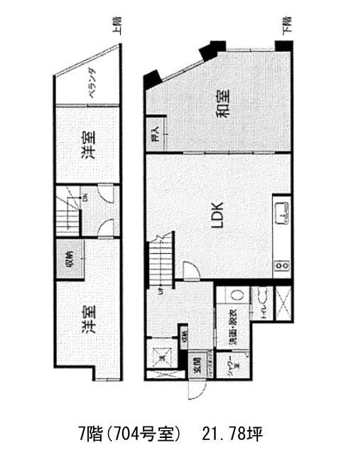
面積
21.78坪賃料(共益費含)
月額440,000円(20,202円/坪)
入居日
即保証金
1,200,034円礼金
1ケ月更新料
新1ケ月償却費
1ケ月竣工
1969年5月構造
RC規模
地上8階/地下1階トイレ
男女共用空調
個別空調エレベーター
有セキュリティ
駐車場
有耐震
旧耐震基準基準階天井高
2800mm空室延床面積
21.78坪情報更新日
2026/01/20原宿タウンホームのテナント募集中区画
| 階数 | 面積 | 賃料(共益費含む) | 保証金 | 入居可能日 | 検討リスト | 詳細 |
|---|---|---|---|---|---|---|
| 7 | 21.78坪 | 440,000円/月(20,202円/坪) | 120万円 | 即 |
…新着物件
原宿タウンホームのアクセス
原宿タウンホームの物件情報
原宿タウンホーム(渋谷区神宮前)は北参道駅(2番出口)から徒歩6分の賃貸オフィスです。原宿タウンホームは北参道駅(2番出口)の他に原宿駅(竹下口)徒歩8分、明治神宮前駅(2番出口)徒歩10分で利用も可能です。

