1階は現在募集がありません
1フロア募集区画あり

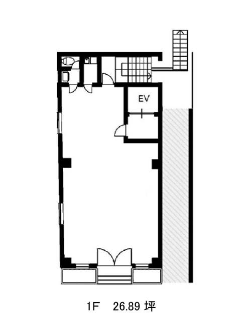
神宮前松井ビル 1階

前の写真 次の写真

物件概要

物件番号

170-00974-4

物件名

神宮前松井ビル

所在地

面積

26.89坪

賃料(共益費含)


入居日

募集終了

保証金

礼金

更新料

償却費

竣工

1989年2月

構造

RC

規模

地上4階/地下1階

トイレ

男女共用

空調

個別空調

エレベーター

セキュリティ

駐車場

耐震

新耐震基準

基準階天井高

空室延床面積

52.89坪

最寄駅

情報更新日

2026/01/06

神宮前松井ビルのテナント募集中区画

階数 面積 賃料(共益費含む) 保証金 入居可能日 検討リスト 詳細
B1-1F 52.89坪 1,512,654円/月(28,600円/坪) 1,322万円
…新着物件

アクセス

神宮前松井ビルの物件情報

神宮前松井ビル(渋谷区神宮前)は渋谷駅(B1番出口)から徒歩6分の賃貸オフィスです。
神宮前松井ビル(渋谷区神宮前5-28-10)は、明治通りから一本入った落ち着きのあるロケーションに佇む賃貸オフィス物件です。1989年竣工の地上4階・地下1階建てで、新耐震基準にも適合。1フロア約28坪の整形区画は、1テナント専有で使いやすく、レイアウトの自由度も高めです。設備は個別空調・男女別トイレ・OAフロアを備え、24時間の利用にも対応。周辺には郵便局やカフェも多く、働きやすいビジネス環境が整っています。原宿・表参道・渋谷エリアで機能性と落ち着きを兼ね備えたオフィスをお探しの企業におすすめです。
神宮前松井ビルは渋谷駅(B1番出口)の他に明治神宮前駅(7番出口)徒歩7分、原宿駅(東口)徒歩11分で利用も可能です。

近隣のエリア・駅から探す