いちご渋谷神山町ビルのテナント募集中区画
| 階数 | 面積 | 賃料(共益費含む) | 保証金 | 入居可能日 | 検討リスト | 詳細 |
|---|---|---|---|---|---|---|
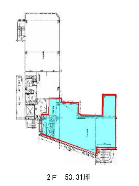
| 1 | 53.60坪 | 応相談(応相談) | 応相談 | 即 |
…新着物件
アクセス
いちご渋谷神山町ビルの物件情報
いちご渋谷神山町ビル(渋谷区神山町)は代々木公園駅(2番出口)から徒歩8分の賃貸オフィスです。井の頭通りから少し入った、静かで落ち着きのある環境に佇む当ビルは、地上5階・地下1階建て、2006年竣工の賃貸オフィス物件です。駅からはやや距離がありますが、そのぶん周囲は車通りも少なく、穏やかな雰囲気が広がっています。
設備は個別空調・OAフロア・光ファイバー・男女別トイレ(共用部)を備え、24時間利用にも対応。エレベーターは1基設置され、セキュリティ面では機械警備を導入しています。
特筆すべきは、ダークトーンで統一されたエントランスホールの美しさ。直線的な照明と石材の組み合わせが洗練された印象を演出し、来訪者にも上質なイメージを与えます。日々の執務空間としてだけでなく、訪問時の第一印象にも配慮されたデザイン性の高いオフィスです。いちご渋谷神山町ビルは代々木公園駅(2番出口)の他に渋谷駅(A2番出口)徒歩10分、代々木八幡駅(南口改札口)徒歩11分で利用も可能です。

