セロンビル 4階
物件概要
物件番号
172-00010-30物件名
セロンビル所在地
- 東京都渋谷区神泉町11-7
- アクセスマップ
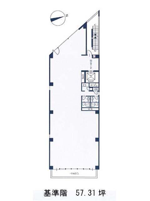
面積
57.31坪賃料(共益費含)
月額1,134,738円(19,800円/坪)
入居日
即保証金
10,315,800円礼金
なし更新料
新1ケ月償却費
2ケ月竣工
1993年3月構造
SRC規模
地上8階/地下1階トイレ
男女別空調
個別空調エレベーター
有セキュリティ
有駐車場
無耐震
新耐震基準基準階天井高
2500mm空室延床面積
57.31坪情報更新日
2026/02/19セロンビルのテナント募集中区画
| 階数 | 面積 | 賃料(共益費含む) | 保証金 | 入居可能日 | 検討リスト | 詳細 |
|---|---|---|---|---|---|---|
| 4 | 57.31坪 | 1,134,738円/月(19,800円/坪) | 1,031万円 | 即 |
…新着物件
セロンビルのアクセス
セロンビルの物件情報
セロンビル(渋谷区神泉町)は神泉駅(南口)から徒歩4分の賃貸オフィスです。1993年竣工、地上8階地下1階建SRC造のビルです。明るいベージュの外壁で上から見るとペンシル型の構造をしています。貸室は60坪弱の中規模なものがそろいます。すっきりとした無柱空間で配置がしやすいでしょう。共用部がフロアの一部に集まっており動線に配慮されています。EV・個別空調・OAフロア・貸室にダイレクトインの男女別トイレといった設備仕様をしています。セキュリティは、安心の機械警備が導入されています。セロンビルは神泉駅(南口)の他に渋谷駅(西口)徒歩10分、駒場東大前駅(東口)徒歩12分で利用も可能です。

