2階は現在募集がありません
Daiwa渋谷神泉ビル 2階
物件概要
Daiwa渋谷神泉ビルのテナント募集中区画
現在、空室がございません。
アクセス
Daiwa渋谷神泉ビルの物件情報
Daiwa渋谷神泉ビル(渋谷区神泉町)は神泉駅(南口)から徒歩4分の賃貸オフィスです。玉川通り沿いの角地に建つ当ビルは、地上9階・地下1階建て、2001年竣工の賃貸オフィス物件です。ガラス張りの外観が印象的で、視認性の高い立地が来訪者への案内もしやすく、企業のプレゼンス向上にも寄与します。
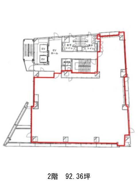
基準階は約92坪の整形区画で、室内中央部に柱がなく、レイアウトの自由度が高い設計となっています。天井高は2,600mmで開放感があり、OAフロア・個別空調・光ファイバー対応・男女別トイレ(共用部)など、快適な執務環境をサポートする設備が整っています。エレベーターは2基設置され、機械警備によるセキュリティも完備。駐車場も備えており、車でのアクセスにも対応しています。
周辺にはカフェやコンビニ、郵便局などが点在し、日常業務に必要な機能が揃っています。Daiwa渋谷神泉ビルは神泉駅(南口)の他に渋谷駅(西口)徒歩8分、池尻大橋駅(北口)徒歩13分で利用も可能です。

