2階は現在募集がありません
1フロア募集区画あり

キューブ渋谷神南 2階

前の写真 次の写真

物件概要

物件番号

173-00122-3

物件名

キューブ渋谷神南

所在地

面積

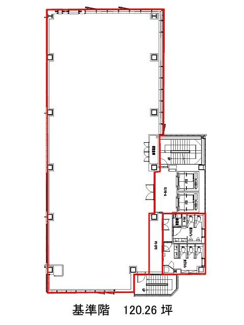
120.26坪

賃料(共益費含)


入居日

募集終了

保証金

礼金

更新料

償却費

竣工

2021年1月

構造

SRC

規模

地上6階/地下1階

トイレ

男女別

空調

個別空調

エレベーター

セキュリティ

駐車場

耐震

新耐震基準

基準階天井高

2700mm

空室延床面積

122.48坪

最寄駅

情報更新日

2026/03/26

キューブ渋谷神南のテナント募集中区画

階数 面積 賃料(共益費含む) 保証金 入居可能日 検討リスト 詳細
3 122.48坪 応相談(応相談) 応相談 2026年4月下旬
…新着物件

キューブ渋谷神南のアクセス

キューブ渋谷神南の物件情報

キューブ渋谷神南(渋谷区神南)は渋谷駅(B1番出口)から徒歩6分の賃貸オフィスです。
2021年竣工、地上6階地下1階建S造の築浅ビルです。角地に経ち視認性が高いでしょう。ガラス面が多く、デザイン性の高い物件となります。基準階面積は120.26坪。中規模の事務所をお探しの方に良いでしょう。貸室は長方形の無柱空間で、配置のしやすい形状をしています。EV2基・個別空調・機械警備・非常階段2箇所・OAフロアといった設備仕様がそろいます。一部店舗(飲食可)としての利用が可能な貸室があります。
キューブ渋谷神南は渋谷駅(B1番出口)の他に明治神宮前駅(1番出口)徒歩11分、原宿駅(西口)徒歩12分で利用も可能です。

近隣のエリア・駅から探す