キューブ渋谷神南のテナント募集中区画
| 階数 | 面積 | 賃料(共益費含む) | 保証金 | 入居可能日 | 検討リスト | 詳細 |
|---|---|---|---|---|---|---|
| 3 | 122.48坪 | 応相談(応相談) | 応相談 | 2026年4月下旬 |
…新着物件
アクセス
キューブ渋谷神南の物件情報
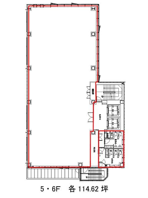
キューブ渋谷神南(渋谷区神南)は渋谷駅(B1番出口)から徒歩6分の賃貸オフィスです。2021年竣工、地上6階地下1階建S造の築浅ビルです。角地に経ち視認性が高いでしょう。ガラス面が多く、デザイン性の高い物件となります。基準階面積は120.26坪。中規模の事務所をお探しの方に良いでしょう。貸室は長方形の無柱空間で、配置のしやすい形状をしています。EV2基・個別空調・機械警備・非常階段2箇所・OAフロアといった設備仕様がそろいます。一部店舗(飲食可)としての利用が可能な貸室があります。キューブ渋谷神南は渋谷駅(B1番出口)の他に明治神宮前駅(1番出口)徒歩11分、原宿駅(西口)徒歩12分で利用も可能です。

