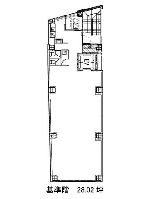
6階は現在募集がありません
FPG links JINNAN 6階
物件概要
FPG links JINNANのテナント募集中区画
現在、空室がございません。
アクセス
FPG links JINNANの物件情報
FPG links JINNAN(渋谷区神南)は渋谷駅(B1番出口)から徒歩3分の賃貸オフィスです。FPG links JINNANは渋谷駅(B1番出口)の他に明治神宮前駅(7番出口)徒歩10分、原宿駅(西口)徒歩12分で利用も可能です。

